Устройство и принцип работы котла КВ-1.3
Котел КВ-1.3 поставляется в моноблочном (котел) или двублочном (котел и топка) исполнении. При необходимости, поставляется третий блок — воздухоподготовитель. Топки котла КВ изготовлены из труб, как и конвективные пакеты. Агрегаты комплектуются колосниковыми цепными решетками обратного хода с пневмомеханическими забрасывателями.
В качестве топлива НЕ используются: высокозольный высоковлажный бурый уголь, сланцевые породы, торф и отходы углепромышленности.
Условное обозначение
Котел КВ-1.3, где:
- К — котел;
- В — водогрейный;
- 1.3 — мощность топки.
Монтаж котла КВ-1.3
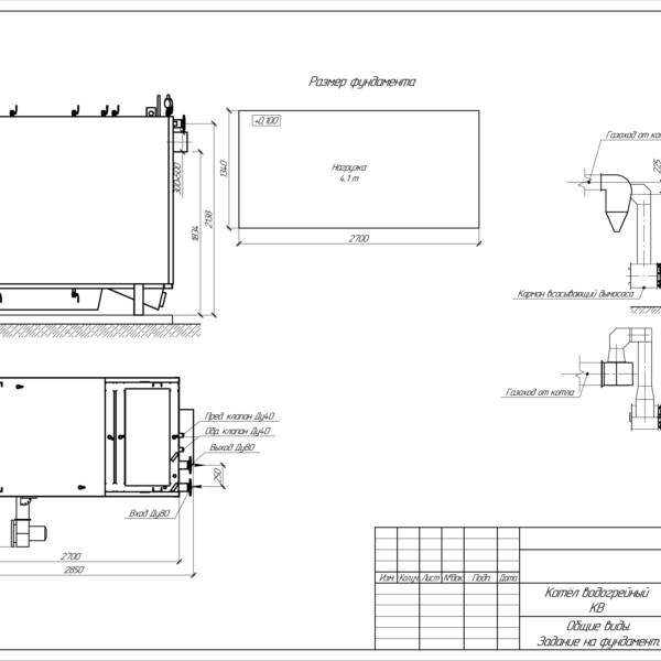
Котел КВ-1.3 поставляется в комплекте с механической топкой и пневмамеханическим забрасывателем ЗП. Устройство доставляется в максимальной заводской сборке, готовое к монтажу и пуско-наладочным работам. Установка монтируется на подготовленное выравненное основание и надежно фиксируется при помощи анкерных креплений.
Монтаж и пуско-наладочные работы котельного оборудования производятся специалистами с соблюдением СНиП 11-35-76 «Котельные установки» и «Правил устройства и безопасной эксплуатации паровых и водогрейных котлов».

